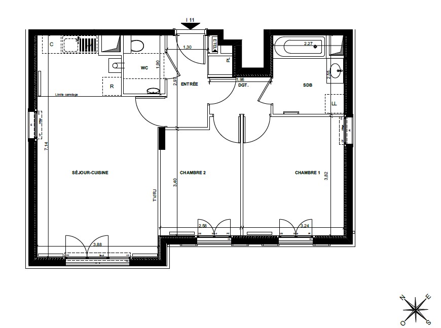
À 5 minutes à pied de la place de la mairie, situé au 1er étage avec ascenseur d'un immeuble neuf de standing, lumineux 3 pièces d'environ 61m² comprenant : entrée avec placard, séjour exposé sud-ouest, cusine américaine entièrement équipée, deux chambres, salle de bain, WC. Chauffage individuel au gaz. Place de parking privative en sous sol. Disponible au 15/09/2021 Loyer mensuel charges comprises 1550 euros dont 110 euros de provision pour charges, soumise à régularisation annuelle. Dépôt de garantie : 1440 euros. Honoraires d'agence à charge locataire 915 euros TTC dont 183 euros TTC pour l'état des lieux.


Montant estimé des dépenses annuelles d'énergie de ce logement pour un usage standard est compris entre € et €. 2019 étant l'année de référence des prix de l'énergie utilisés pour établir cette estimation.
* FAI : Frais d'agence inclus
* CC : Charges Comprises
* HC : Hors charges